Granit Arbeitsplatten
Klare Linien und Farben machen diese Küche in Alfter zu einem gemütlichen Alltagsraum. Die großzügigen Fronten in strahlendem Weiß wurden mit schwarzen Granit Arbeitsplatten und Chromgriffen an Unter- sowie Oberschränken gewählt. Die sichtbaren Elektrogeräte sind ebenso wie Spüle und Kochfeld in Schwarz ausgesucht.
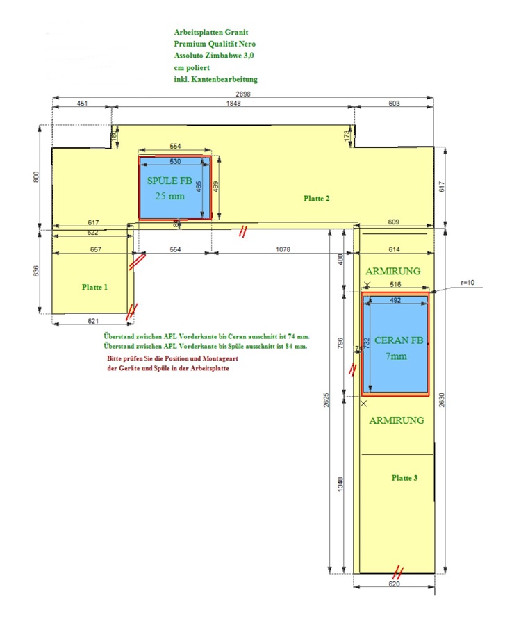
Für die U-Küche wurden die Arbeitsplatten aus dem Granit Nero Assoluto Zimbabwe gefertigt. Diese haben eine Dicke von 3,0 cm und polierte Oberflächen. Die erste Arbeitsplatte wurde in den Maßen 65,70 x 63,60 cm hergestellt. In die zweite Küchenarbeitsplatte mit den Maßen 289,80 x 80,00 cm wurde ein flächenbündiger Ausschnitt für die Spüle eingearbeitet, sowie zwei Ausklinkungen. Die dritte Granitplatte hat die Maße 262,50 x 62,00 cm und ebenso einen flächenbündigen Ausschnitt für das Ceranfeld.
Lieferung: Granit Arbeitsplatten Nero Assoluto Zimbabwe
Lieferort: Alfter in Nordrhein-Westfalen






© Copyright Arbeitsplatten Deutschland 2013 - 2026. | WEB Design MAAG-Projekt