 
  Granit Arbeitsplatten
 
		 
		
				
		
		Eine Hochglanz Küche ist das Sinnbild von zeitloser Eleganz, diese kommt in einem schönen Weißton zu einer besonderen Geltung. Die Fronten spiegeln besonders elegant den Raum wieder. Einen klaren Kontrast erleben weiße Hochglanz Küchen mit Küchenarbeitsplatten aus schwarzen Stein - dies ergibt einen besonders lebendigen Mix in der Material- und Oberflächenausführung.
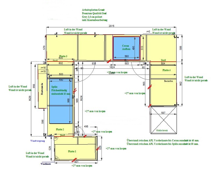
Für diese Küche in Alfter wurde der Granit Steel Grey als Arbeitsplattenmaterial gewählt. Daraus wurden vier Arbeitsplatten in 3,0 cm Stärke in den folgenden Maßen gefertigt:
1.   93,10 x 52,90 cm
2. 162,40 x 60,20 cm, mit flächenbündiger Ausschnitt für die Spüle
3. 281,50 x 58,80 cm, mit Aufbauausschnitt für das Ceranfeld
4.   96,50 x 58,70 cm
Die Oberflächen und Kanten sind poliert.
Lieferung: Granit Arbeitsplatten Steel Grey
Lieferort: Alfter in Nordrhein-Westfalen






© Copyright Arbeitsplatten Deutschland 2013 - 2025. | WEB Design MAAG-Projekt