Granit Arbeitsplatten
In der Küche kombinierten die Eigentümer maßgefertigte Küchenschränke mit dem Granit Ivory Brown / Shivakashi als Arbeitsplatten. Das extragroße Spülbecken passt perfekt zum Landhausstil der Küche. Was in der Küche auffällt, sind die vielen verzierten Küchenelemente.
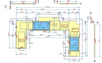
Die von uns gefertigten Granit Arbeitsplatten wurden in den folgenden Maßen gefertigt und in Wahlstedt bei Bad Segeberg geliefert und montiert:
1. 166,10 x 63,10 cm
2. 255,50 x 82,20 cm
3. 215,30 x 66,40 cm
In die zweite Arbeitsplatte aus Granit wurden Ausklinkungen für das Fenster eingearbeitet, sowie ein flächenbündiger Ausschnitt für die Spüle. In die dritte Granitplatte wurde ein flächenbündiger Ausschnitt für das Ceranfeld eingearbeitet und Ausklinkungen für die Wand.
Außerdem wurden unterschiedliche lange Sockelleisten in eine Dike von 2,0 cm und 4,0 cm Höhe gefertigt, geliefert und montiert.
Lieferung: Granit Arbeitsplatten und Sockelleisten Ivory Brown / Shivakashi
Lieferort: Wahlstedt bei Bad Segeberg in Schleswig-Holstein






© Copyright Arbeitsplatten Deutschland 2013 - 2026. | WEB Design MAAG-Projekt