Granit Arbeitsplatten
Die großzügige Küche des Hauses verfügt über eine edle Einbauküche mit Granit Arbeitsplatten. Diese moderne hochglanz Küche in Weiß umfasst Elemente mit glänzenden Oberflächen, wie Schränke mit Hochglanzfronten. Die Granit Nero Assoluto Zimbabwe Arbeitsplatten sind Schwarz und matt, da sie satiniert bearbeitet worden sind.
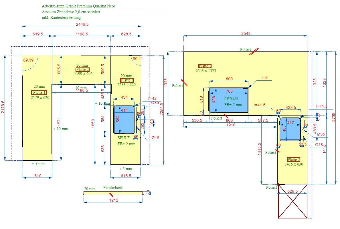
Die Lieferung besteht aus 5 Arbeitsplatten in 2 cm Stärke und in den folgenden Maßen:
1. 217,9 x 62 cm
2. 119,9 x 60,6 cm
3. 225,5 x 62,9 cm, mit flächenbündigen Ausschnitt und zwei Bohrungen
4. 254,3 x 132,3 cm, mit flächenbündigen Ausschnitt
5. 141,6 x 63 cm, mit Unterbauausschnitt und zwei Bohrungen
Lieferung: Granit Arbeitsplatten Nero Assoluto Zimbabwe
Lieferort: Hagneck bei Biel in der Schweiz






© Copyright Arbeitsplatten Deutschland 2013 - 2026. | WEB Design MAAG-Projekt