 
  Granit Arbeitsplatten
 
		 
		
				
		
		So wichtig eine zusätzliche, künstliche Beleuchtung auch ist – auf Tageslicht kann man für hellere Räume nicht verzichten und mitunter gibt es Lösungen für Fenster und Arbeitsplatten in der Küche, die bisher noch gar nicht in Betracht gezogen wurden. In dieser Küche in Bochum haben unsere Kunden auf Fensterbänke verzichtet und ihre Arbeitsplatte um diese verlängert. So ist eine große Arbeitsfläche entstanden.
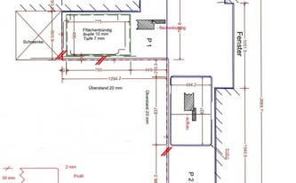
Die zwei Granit Arbeitsplatten haben polierte Oberflächen und sind aus dem Material Nero Assoluto India in 3,0 cm Stärke gefertigt. Die erste Arbeitsplatte hat einen flächenbündigen Ausschnitt für das Induktionskochfeld. Die zweite Platte hat einen Aufbauausschnitt für die Edelstahlspüle und nicht sichtbare Ausklinkungen.
Die Maße der Arbeitsplatten:
1. 129,40 x 79,30 cm
2. 268,80 x 82,50 cm
Sieben Wischleisten in unterschiedlichen längen sind 5 cm hoch und 1 cm dick ebenso aus dem selben Material gefertigt und montiert worden.
Lieferung: Granit Arbeitsplatten und Wischleisten Nero Assoluto India
Lieferort: Bochum in Nordrhein-Westfalen






© Copyright Arbeitsplatten Deutschland 2013 - 2025. | WEB Design MAAG-Projekt