 
  Granit Arbeitsplatte und Sockelleisten
 
		 
		
				
		
		Nach einer Renovierung der Küche stellt man oft fest, dass man noch „mehr Küchenzeile“ benötigt. Grundsätzlich ist das Erweitern einer Küche kein Problem. Es müssen nur passende Küchenschränke angebaut werden, die Arbeitsplatte muss dann durch eine in passender Länge und Farbe ergänzt werden.
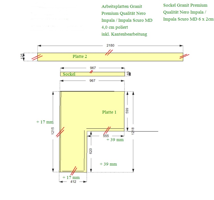
Unsere Kunden aus Bonn haben Ihre Holzküche in U-Form mit einem Küchenschrak in L-Form erweitert. Passend zu den bestehenden Arbeitsplatten wurde der Granit Nero Impala / Impala Scuro MD in 4,0 cm zur Fertigung der neuen Arbeitsplatte gewählt. Diese wurde in L-Form in den Maßen 121,80 x 96,70 cm gefertigt und montiert. Dazu zwei Sockelleisten in 2,0 cm Stärke und den Maßen 96,70 x 6,00 cm und 218,00 x 12,50 cm.
Lieferung: Granit Arbeitsplatte und Sockelleisten Nero Impala / Impala Scuro MD
Lieferort: Bonn in Nordrhein-Westfalen






© Copyright Arbeitsplatten Deutschland 2013 - 2025. | WEB Design MAAG-Projekt