 
  Infinity Arbeitsplatten, Seitenwange, Tischplatte und Fensterbänke
 
		 
		
				
		
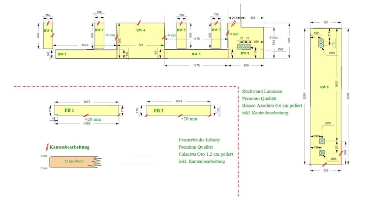
		In einer eleganten Küche in Bonn kamen hochwertige Materialien zum Einsatz, die dem Raum ein modernes und luxuriöses Erscheinungsbild verleihen. Die Arbeitsplatten, eine Seitenwange, eine Tischplatte und zwei Fensterbänke wurden aus Calacatta Oro von Infinity gefertigt. Dieses Material zeichnet sich durch seine weiße Grundfarbe mit goldenen und grauen Aderungen aus, die dem Raum eine exklusive Note verleihen. Die polierte Oberfläche betont die natürlichen Muster und verleiht den Flächen eine glänzende, edle Optik.
Die Küche ist in L-Form gestaltet. Unter zwei Fenstern verläuft die erste Arbeitsplatte mit den Maßen 286,80 x 63,60 cm, in die ein Ausschnitt für ein Ceranfeld integriert wurde. Die zweite Arbeitsplatte misst 228,80 x 64,00 cm und verfügt über einen Unterbauschnitt für die Spüle sowie eine Bohrung für die Armatur. Eine Seitenwange mit den Maßen 91,70 x 64,00 cm wurde auf Gehrung verklebt, um eine nahtlose Verbindung zur Arbeitsplatte zu schaffen. Ergänzt wird das Design durch eine Tischplatte mit den Maßen 110,00 x 70,00 cm sowie zwei Fensterbänke in den Abmessungen 107,70 x 17,10 cm und 107,40 x 17,60 cm.
Für die Rückwände wurden insgesamt neun Platten aus Laminam Bianco Assoluto verwendet. Dieses Material zeichnet sich durch seine makellose, reinweiße Optik aus und sorgt für eine klare, moderne Ästhetik. Die Rückwände wurden entlang beider Wände der Küche angebracht und bilden einen perfekten Kontrast zu den marmorierten Arbeitsflächen. Zusammen schaffen die Materialien ein harmonisches und stilvolles Gesamtbild, das Funktionalität mit zeitloser Eleganz verbindet.
Lieferung: Infinity Arbeitsplatten, Seitenwange, Tischplatte und Fensterbänke Calacatta Oro und Laminam Rückwände Bianco Assoluto
Lieferort: Bonn in Nordrhein-Westfalen






© Copyright Arbeitsplatten Deutschland 2013 - 2025. | WEB Design MAAG-Projekt