Neolith Arbeitsplatten
Die schlichte L-förmige Küche strahlt Eleganz und Modernität aus, dank der Verwendung von Basalt Black Material von Neolith für die Arbeitsplatten. Diese wurden sorgfältig nach der Produktion in Bonn montiert, um höchste Qualität zu gewährleisten.
Die weißen Unterschränke bilden einen harmonischen Kontrast zu den schwarzen Arbeitsplatten und verleihen der Küche ein helles und luftiges Ambiente. Die Schubladen mit Griffmulden bieten nicht nur eine praktische Aufbewahrungslösung, sondern tragen auch zur nahtlosen Ästhetik bei.
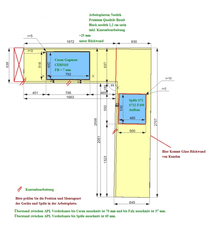
Die erste Neolith Arbeitsplatte, mit einer Dicke von 1,2 cm, misst 167,20 x 63,80 cm und ist mit einem flächenbündig eingebauten Kochfeld ausgestattet.
Die zweite Arbeitsplatte erstreckt sich über großzügige 270,70 x 64,50 x 1,20 cm und beherbergt eine Aufbauspüle mit einem Blick auf den Garten. Diese Anordnung verbindet Funktionalität mit einer malerischen Aussicht und schafft einen einladenden Raum zum Arbeiten und Genießen.
Lieferung: Neolith Arbeitsplatten Basalt Black
Lieferort: Bonn in Nordrhein-Westfalen






© Copyright Arbeitsplatten Deutschland 2013 - 2026. | WEB Design MAAG-Projekt