Granit Arbeitsplatten
Die Arbeitsplatten in der Küche benötigen in aller Regel einige Sorgfalt, damit sie viele Jahre halten. Gerade Granit Arbeitsplatten benötigen aber mitunter sehr wenig Pflege. Denn durch ihre Versiegelung sind sie robust und lassen kein Wasser durch. Das ist gerade im Bereich der Spüle oder des Herdes ein großer Vorteil.
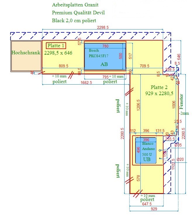
In diese Granit Arbeitsplatte aus dem Material Devil Black wurden zwei Ausschnitte (1 x Unterbau, 1 x Aufbau) eingearbeitet für die Unterbauspüle und das Ceranfeld. Die Oberflächen sind hochglanzpoliert. Die Arbeitsplatten sind in 2 cm Stärke.
Lieferung: Granit Arbeitsplatten Devil Black
Lieferort: Bremen






© Copyright Arbeitsplatten Deutschland 2013 - 2026. | WEB Design MAAG-Projekt