 
  Granit Arbeitsplatten und Wischleisten
 
		 
		
				
		
		Unsere Kunden aus Brühl wünschten sich einen cleanen, schlichten Look und eine luftige, offene Atmosphäre. Dafür wurden die alten Arbeitsplatten entfernt. Die Küchenelemente und Rückwände wurden aber beibehalten und mit neuen Arbeitsplatten gezielt in Szene gesetzt.
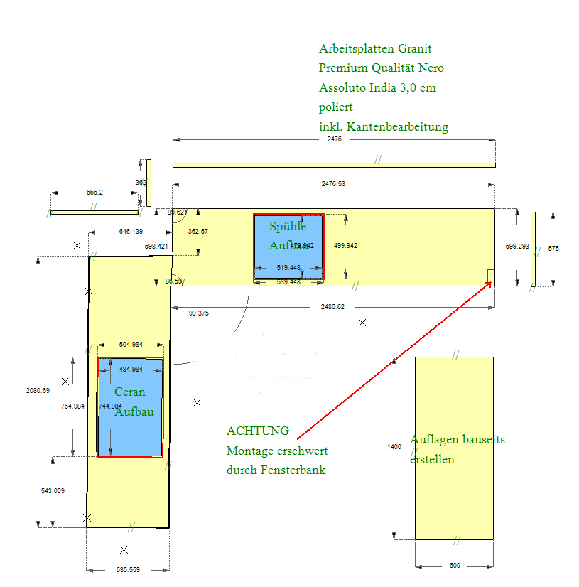
Die zwei neuen Arbeitsplatten wurden aus dem Granit Nero Assoluto India in 3,0 cm Stärke in den Maßen 208,00 x 63,55 cm und 247,65 x 59,92 cm gefertigt. In die erste Arbeitsplatte wurde ein gesägter Ausschnitt das für das Ceranfeld eingearbeitet. In die zweite Arbeitsplatte wurde ein Aufbauausschnitt für die Spüle ausgesägt.
Dazu wurden vier Granit Wischleisten in 3,0 x 2,00 cm hergestellt und ebenso wie der Rest montiert. Die Oberflächen der Arbeitsplatten und Wischleisten sind polierte.
Lieferung: Granit Arbeitsplatten und Wischleisten Nero Assoluto India
Lieferort: Brühl (Rheinland) in Nordrhein-Westfalen






© Copyright Arbeitsplatten Deutschland 2013 - 2025. | WEB Design MAAG-Projekt