Dekton Arbeitsplatten, Wangen und Wischleisten
Räume leben von ihrer Atmosphäre, die wiederum mit der Raumsituation zusammenhängt. Eine wichtige Frage dabei: Was rückt ins Blickfeld? Mit Kücheninseln sind Blickachsen vielschichtiger inszenierbar. Der Raum wird dadurch anders wahrgenommen. Gerade bei offenen Küchen lassen sich mit Kücheninseln unterschiedliche Zonen schaffen.
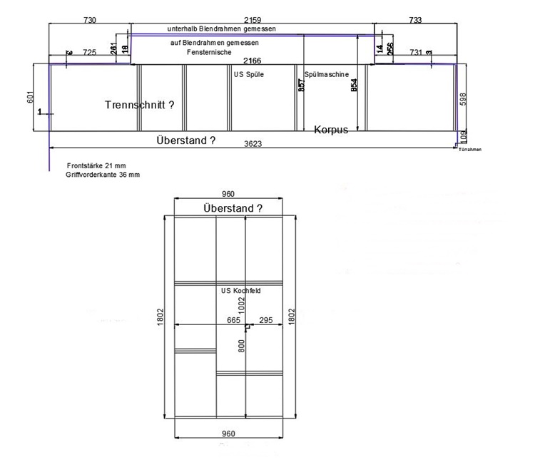
In der Mitte dieser Küche in Buxtehude haben die Kunden einen Küchenblock positioniert. Dieser wurde mit Dekton Arbeitsplatte und Seitenwangen aus dem Material Zenith mit UltraMatten Oberflächen und eine Dicke von 2,0 cm verkleidet. Die Arbeitsplatte wurde in den Maßen 180,20 x 96,00 cm mit einem Ausschnitt für das Induktionskochfeld mit integriertem Dunstabzug gefertigt. Die beiden Wangen haben die gleichen Maße von 93,70 x 104,00 cm. In die eine Wangen wurden zwei Bohrungen für Steckdosen eingearbeitet. Die Arbeitsplatte und Seitenwangen wurden mit einem Gehrungsschnitt verbunden.
Für die Küchenzeile wurden zwei Dekton Arbeitsplatten in den Maßen 289,50 x 90,40 cm und 72,50 x 64,20 cm, sowie sechs Wischleisten gefertigt und montiert. In die erste Arbeitsplatte wurde ein Aufbauausschnitt für die Spüle gesägt, sowie Ausklinkungen für das Fenster.
Lieferung: Dekton Arbeitsplatten, Wangen und Wischleisten Zenith
Lieferort: Buxtehude in Niedersachsen






© Copyright Arbeitsplatten Deutschland 2013 - 2026. | WEB Design MAAG-Projekt