Caesarstone Arbeitsplatten
Das Restaurant Nudelmacher im Chemnitz Center wollte mit den Umbau einen Ort schaffen, den Restaurant-Gäste zum entspannten Genuss nach dem Shoppen oder zum Treffen mit Freunden nutzen können. Das Restaurant soll eine stilvolle, weltoffene, trendbewusste, smarte und urbane Atmosphäre kreieren.
Das Ambiente mit weißen Caesarstone Arbeitsplatten und massiven Holzmöbeln harmoniere wunderbar mit der Vintage-Optik der Fliesen. Caesarstone zufolge sind die Arbeitsplatten sehr widerstandsfähig, das die Oberfläche nicht anfällig für Verschmutzungen und außerdem pflegeleicht sind. Dies sei aufgrund des hohen Publikumsverkehrs im Restaurant sehr wichtig.
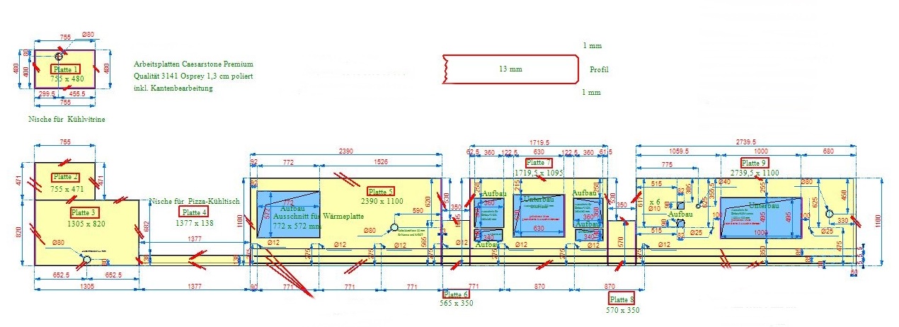
Neun Caesarstone Arbeitsplatten in diversen Maßen wurden von MAAS GmbH Natursteinmanufaktur gefertigt. Diese sind aus dem Material Osprey in 1,3 cm Stärke und haben polierten Oberflächen und Kanten. Es wurden 4 Bohrungen, 7 gesägte Ausschnitte, sowie 2 Unterbauausschnitte eingearbeitet.
Lieferung: Caesarstone Arbeitsplatten 3141 Osprey
Lieferort: Chemnitz in Sachsen






© Copyright Arbeitsplatten Deutschland 2013 - 2026. | WEB Design MAAG-Projekt