Granit Arbeitsplatten
Schwarze Küchen wirken edel und elegant. Wie diese große Küche in Kirchberg an der Jagst bei Crailsheim mit matten Fronten und satinierten Arbeitsplatten. Natürlich muss bei Küchen in Schwarz darauf geachtet werden, dass sie nicht düster wirken. Das matte Schwarz wird mit warmen und ausdrucksstarkem Holz kombiniert, das für eine warme und wohnliche Atmosphäre sorgt.
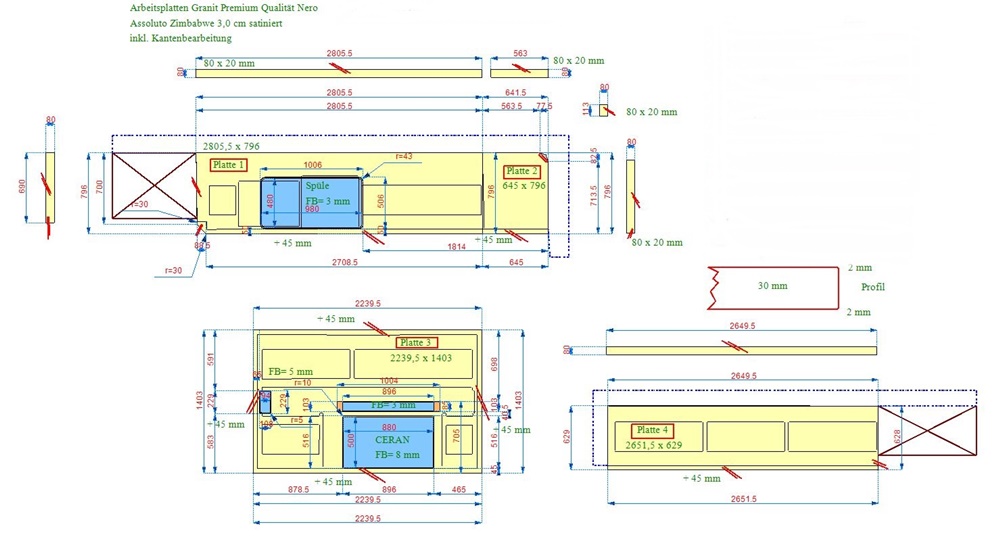
Die vier Arbeitsplatten sind aus dem Granit Nero Assoluto Zimbabwe in 3,0 cm Stärke und wurden in den folgenden Maßen gefertigt:
1. 280,55 x 79,60 cm
2. 64,50 x 79,60 cm
3. 223,95 x 140,30 cm
4. 265,15 x 62,90 cm
In die erste Arbeitsplatte wurde ein flächenbündiger Ausschnitt für die Spüle eingearbeitet. In die dritte Platte wurden drei flächenbündige Ausschnitte eingearbeitet: Ceranfeld, versenkbare Steckdosen und Dampfabzug.
Dazu wurden 6 Nero Assoluto Zimbabwe Wischleisten in 8,0 x 2,0 cm gefertigt und montiert.
Lieferung: Granit Arbeitsplatten und Wischleisten Nero Assoluto Zimbabwe
Lieferort: Kirchberg an der Jagst bei Crailsheim in Baden-Württemberg






© Copyright Arbeitsplatten Deutschland 2013 - 2026. | WEB Design MAAG-Projekt