Granit Arbeitsplatten
Arbeitsplatten sind ein wichtiger Bestandteil einer Küche. Die Qualität und auch das Aussehen der Arbeitsplatte spielen eine wichtige Rolle. Somit wird die Entscheidung nach der richtigen Arbeitsplatte zu einer sehr wichtigen. Wir bieten Ihnen eine persönliche Beratung mit einigen Musterstücken an, die Ihnen bei Ihrer Entscheidung weiterhelfen könnte.
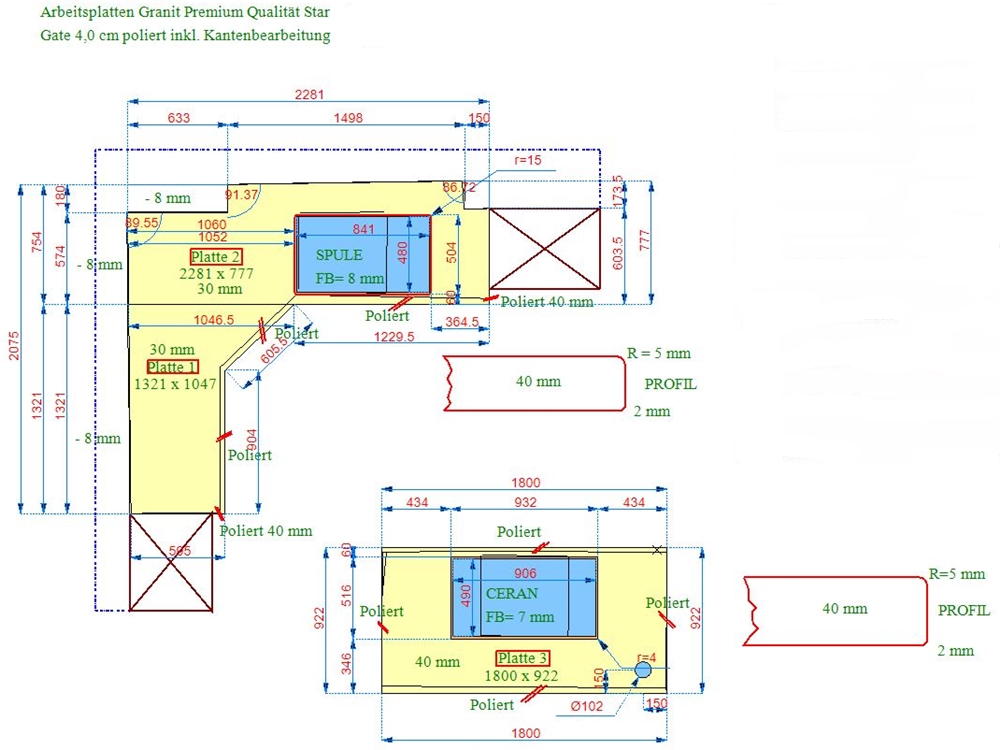
Aufmaß, Lieferung und Montage dieser Arbeitsplatten aus Granit Star Gate mit polierter Oberfläche und 4,0 cm Plattenstärke wurden in Karben bei Darmstadt ausgeführt. Die Arbeitsplatten wurden in folgenden Maßen produziert: 228,1 x 77,7 cm, 132,1 x 104,7 cm und 180,0 x 92,2 cm. Für die Küchengeräte (Spülbecken und Ceranfeld) wurden jeweils eine flächenbündiger Ausschnitt in zwei Arbeitsplatten eingearbeitet. Damit die Platten perfekt auf die Küchenelemente passen, wurden mehrere Ausklinkungen und Schrägschnitte aus den Platten rausgeschnitten. Alle sichtbaren Kanten der Granitplatten wurden mit einer Bleistiftrundung bearbeitet.
Lieferung: Granit Arbeitsplatten Star Gate
Lieferort: Karben bei Darmstadt in Hessen






© Copyright Arbeitsplatten Deutschland 2013 - 2026. | WEB Design MAAG-Projekt