Granit Arbeitsplatten
Der wunderschöne Granit Azul Imperial Extra besticht nicht nur durch seine außergewöhnlich charakteristische Härte und Robustheit, sondern vor allem durch die wunderschöne und seltene Farbgebung die den Azul Imperial Extra im Natursteinsektor zu einer echten Rarität werden lässt. Das spektakuläre Meeresblau durchzogen von einzelnen grauen und weißen Maserungen, erinnern an eine Bucht in der Brandung.
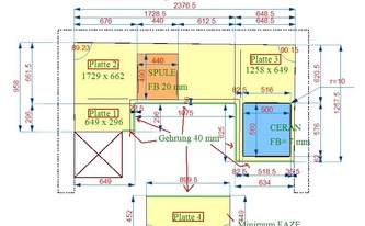
In Schaafheim bei Dieburg wurden vier Granit Arbeitsplatten montiert. Die Arbeitsplatten haben einen 4 cm Gehrungsschnitt und polierte Oberflächen. Diese wurden in den folgenden Maßen gefertigt:
1. 64,9 x 29,6 cm
2. 172,9 x 66,2 cm, mit einem flächenbündigen Ausschnitt für die Spüle
3. 125,8 x 64,9 cm, mit einen flächenbündigen Ausschnitt für das Ceranfeld
4. 90,4 x 45,2 cm
Lieferung: Granit Arbeitsplatten Azul Imperial Extra
Lieferort: Schaafheim bei Dieburg in Hessen






© Copyright Arbeitsplatten Deutschland 2013 - 2026. | WEB Design MAAG-Projekt