Dekton Arbeitsplatte und Rückwand
Das revolutionäre Produkt Dekton bietet ein neues Konzept in der Welt des Designs und der Architektur. Hergestellt durch anspruchsvolle Rohstoffe wie Glas, Porzellan und Quarz, ist Dekton ein unikates Material.
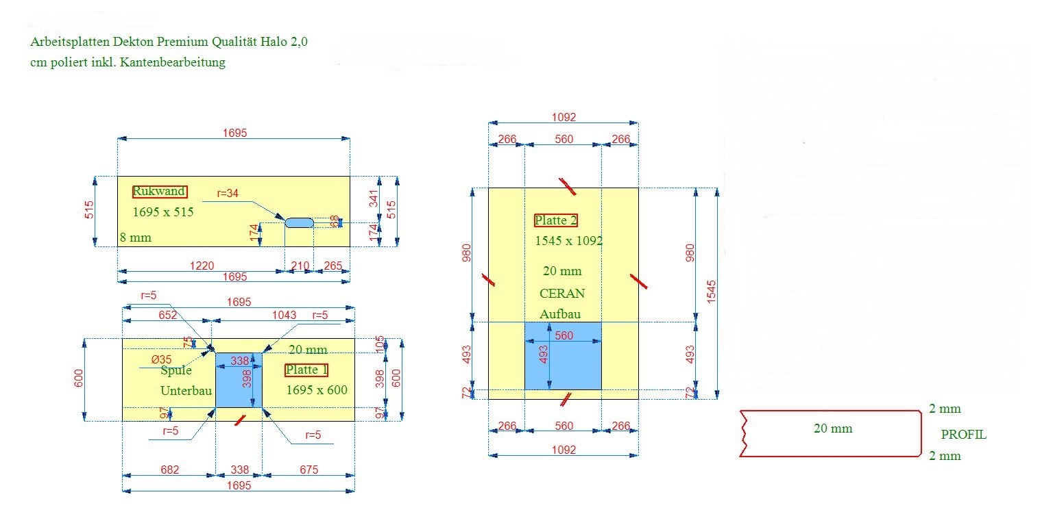
Das Material Dekton Halo haben wir für eine Arbeitsplatte, eine Insel-Arbeitsplatte und eine Rückwand ausgenutzt. Alle drei Produkte wurden mit polierter Oberfläche und 2,0 cm Stärke produziert. Die Insel-Arbeitsplatte hat die Maße von 154,5 x 109,2 cm und einen Aufbauausschnitt für das Ceranfeld. Die 169,5 x 60,0 cm große Arbetsplatte hat einen Unterbauausschnitt für das Spülbecken. Für die Steckdose kaben wir eine Lochbohrung in der Rückwand gemacht. Die Lieferung und Montage erfolgte in unserem Nachbarland Österreich in der Stadt Dornbirn.
Lieferung: Dekton Arbeitsplatte und Rückwand Halo
Lieferort: Dornbirn in Österreich






© Copyright Arbeitsplatten Deutschland 2013 - 2026. | WEB Design MAAG-Projekt