Dekton Arbeitsplatten und Wischleisten
Bei dieser grifflosen Küche in Düsseldorf findet auf kleinstem Raum alles seine Ordnung. Mit dem matten Graphitgrau der Fronten und den Arbeitsplatten wirkt die moderne Küche trotzdem nicht zu düster, sondern modisch elegant. Die Küchenzeile mit Kochfeld und Spüle ist stilvoll von der Kücheninsel getrennt, durch die einander gegenüberliegende Anordnung jedoch im Alltag mit kurzen Arbeitswegen wechselbar. Auch der Stauraum in den Schrankelementen überzeugt in dieser Küche.
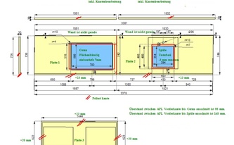
Als Arbeitsplatten wurde das Material Galema von Dekton in 1,2 cm Stärke und UltraMatt Textur gewählt. Daraus fertigten wir drei Arbeitsplatten in den folgenden Maßen:
1. 155,10 x 73,80 cm, mit flächenbündigen Ausschnitt für das Ceranfeld
2. 183,30 x 74,60 cm, mit Unterbauausschnitt für die Spüle und Armaturbohrung
3. 144,40 x 62,30 cm
Dazu wurden drei Wischleisten in 1,2 cm Stärke und 3,0 cm Höhe und den Längen: 72,60 cm, 155,10 cm und 183,20 cm gefertigt und an die Wand montiert.
Lieferung: Dekton Arbeitsplatten und Wischleisten Galema
Lieferort: Düsseldorf in Nordrhein-Westfalen






© Copyright Arbeitsplatten Deutschland 2013 - 2026. | WEB Design MAAG-Projekt