Granit Arbeitsplatten
Frisch, offen und klar im Design bringt die elegante Küche mit moderner Kücheninsel frischen Wind in das Zuhause unserer Kunden aus Düsseldorf. Durch den offenen Übergang vom Essbereich in die Küche wirkt der Raum trotz kühler Struktur sehr einladend. Eine geräumige Schrankwand mit hoch eingebauten Elektrogeräten nimmt seitlich zur geräumigen Kücheninsel Stellung.
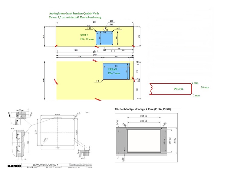
Die Granit Arbeitsplatten sind das Highlight der Küche. Die Kochfläche und die Spüle sind in gleichbleibender, eckiger Form in die Arbeitsplatte integriert. Die Kücheninsel lässt sich umlaufend begehen und bietet zum Wohnbereich hin auch zwei Sitzplätze für den Alltag.
Die beiden Granit Arbeitsplatten wurden aus dem einzigartigen Material Verde Picasso in 3,0 cm Stärke mit satinierten Oberflächen und polierten Sichtkanten gefertigt. Die erste Arbeitsplatte wurde in den Maßen 239,90 x 63,00 cm mit einem flächenbündigen Ausschnitt für die Spüle und einer Bohrung für die Mischbatterie gefertigt. Die zweite Granitplatte wurde in den Maßen 240,00 x 120,00 cm mit einem flächenbündigen Ausschnitt für die Kochfläche hergestellt und auf der Kücheninsel montiert.
Lieferung: Granit Arbeitsplatten Verde Picasso
Lieferort: Düsseldorf in Nordrhein-Westfalen






© Copyright Arbeitsplatten Deutschland 2013 - 2026. | WEB Design MAAG-Projekt