Neolith Arbeitsplatten und Wischleisten
Ein großer Vorteil von Grau ist seine Zeitlosigkeit. Mit dieser Farbe wirkt die Küche immer modern und frisch. Die hier zu sehende Küche in Duisburg beispielsweise wurde auf der Grundlage von Beige eingerichtet und mit feinen Kontrasten und passenden Erdfarben für Küche kombiniert.
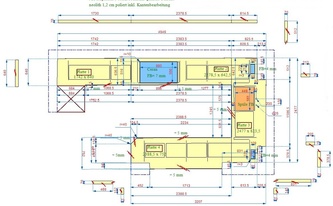
Die dunkelgrauen Keramikarbeitsplatten wurden aus dem Neolith in der Farbe Cement gefertigt. Die Oberflächen sind poliert und die Stärke ist nur 1,2 cm. Für diese geräumige Küche wurden vier Neolith Arbeitsplatten in den Maßen gefertigt:
1. 174,20 x 64,00 cm
2. 237,85 x 64,25 cm
3. 247,70 x 82,35 cm
4. 238,85 x 75,20 cm
In die zweite Arbeitsplatte wurde ein flächenbündiger Ausschnitt für das Ceranfeld eingearbeitet. In die dritte Platte wurde ein flächenbündigen Ausschnitt für die Spüle und zwei für Steckdosen eingearbeitet, sowie Ausklinkungen und Bohrungen. In die vierte Keramikplatte wurden Ausklinkungen und ein Schrägschnitt eingearbeitet. Dazu wurden aus dem selben Material 9,66 Lfm Wischleisten in 7,0 cm Höhe gefertigt und montiert.
Lieferung: Neolith Arbeitsplatten und Wischleisten Cement neolith
Lieferort: Duisburg in Nordrhein-Westfalen






© Copyright Arbeitsplatten Deutschland 2013 - 2026. | WEB Design MAAG-Projekt