 
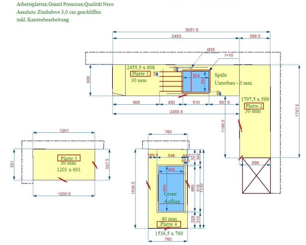
  Granit Arbeitsplatten
 
		 
		
				
		
		Beim Blick in diese Küchen in Erftstadt seht ihr schon: Hier gibt es mehr als genügend Platz! Spüle, Ceranfeld und Ablageflächen. Was wollt ihr mehr? Und auch die Gestaltung überzeugt: Die minimalistische Farbgebung passt super in den ansonsten vom Naturstein Granit dominierten Wohnwürfel.
Die vier Granit Arbeitsplatten wurden aus dem Material Nero Assoluto Zimbabwe gefertigt. Die Plattenstärke ist 3,0 cm und die Oberflächen sind geschliffen. Die Arbeitsplatten haben folgende Maße:
1. 245,55 x 60,80 cm
2. 179,75 x 59,90 cm
3. 120,10 x 60,10 cm
4. 153,65 x 76,00 cm
In die erste Arbeitsplatte wurde ein Unterbauausschnitt für die Spüle, eine Armaturbohrung und fünf Abtropfrillen eingearbeitet. In die vierte Arbeitsplatte wurde ein Aufbauausschnitt für das Ceranfeld eingesägt.
Lieferung: Granit Arbeitsplatten Nero Assoluto Zimbabwe
Lieferort: Erftstadt in Nordrhein-Westfalen






© Copyright Arbeitsplatten Deutschland 2013 - 2025. | WEB Design MAAG-Projekt