Dekton Arbeitsplatten
Dieser Küche in Frankfurt am Main gelingt der Spagat zwischen einem innovativen Materialmix und höchster Funktionalität. Die Fronten der Küche sind in sanften pastelligen Farben lackiert. Geradlinig, harmonisch fließende Formen, gerade Kanten und der Designklassiker, die Retrofliesen, die diese Küche dominieren. Obwohl die Küche sehr auffällig ist, kommt die Funktionalität nicht zu kurz. Moderne Arbeitsplatten aus Dekton die sehr robust und pflegeleicht sind, erleichtern den Alltag unserer Kunden.
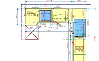
Es wurden zwei Arbeitsplatten in den Maßen 215,15 x 76,85 cm und 274,30 x 60,10 cm aus dem Dekton Makai in 2,0 cm Stärke und Oberflächen mit UltraTextur gefertigt. Die erste Arbeitsplatte hat eine Ausklinkung, sowie einen Unterbauausschnitt. In die zweite Dektonplatte wurde das Ceranfeld flächenbündig eingebaut.
Lieferung: Dekton Arbeitsplatten Makai
Lieferort: Frankfurt am Main in Hessen






© Copyright Arbeitsplatten Deutschland 2013 - 2026. | WEB Design MAAG-Projekt