Granit Arbeitsplatten
Granit ist eine sehr elegante Variante der Küchenarbeitsplatte. Durch die besonderen Eigenschaften von Granit – zeitlos, langlebig, gut zu säubern, hitze- und lichtbeständig, schnitt und kratzfest – ist es kein Wunder, das Granit schon vor Jahren Einzug in unsere Küchen genommen hat.
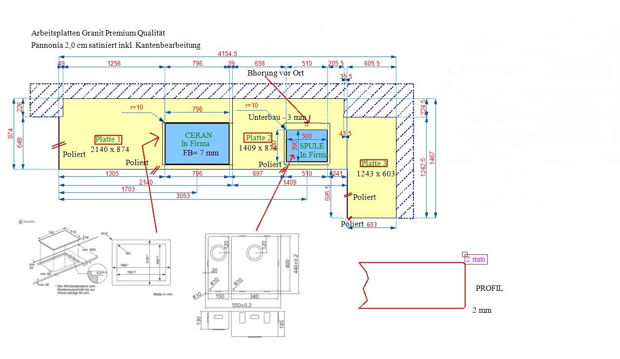
Unser Kunde aus der größten Stadt Hessens, Frankfurt am Main, weiß die Eigenschaften zu schätzen und genau aus diesem Grund entschied er sich für die Granit Arbeitsplatten aus dem Material Pannonia in 2 cm Stärke.
Diese Natursteinplatte ist ein Unikat und macht die Küche einzigartig. Granit, edel, kühl, elegant, passt hervorragend zu dieser Designküchen. Der Pannonia ist eben wie die Natur: besonders anpassungsfähig mit wunderbaren Farbnuancen, faszinierenden Einschlüssen und natürlichen Strukturen, kunstvoll wie ein schönes Gemälde.
Diese wurden in 3 Platten mit den Aufzug auf die 5. Etage geliefert und professionell montiert. Die Oberfläche der Küchenarbeitsplatte ist satiniert. Das Ceranfeld wurde flächenbündig eingebaut und für die Spüle wurde ein Unterbauausschnitt eingearbeitet, sowie eine Ø 50 mm Bohrung für die Mischbatterie.
Lieferung: Granit Arbeitsplatten Pannonia
Lieferort: Frankfurt am Main in Hessen






© Copyright Arbeitsplatten Deutschland 2013 - 2026. | WEB Design MAAG-Projekt