Silestone Arbeitsplatten
Was für eine luxuriöse Küchengestaltung! Alles in dieser Küche präsentiert sich als die perfekte Kombination aus Luxus und minimalistischem Design. Klingt nach einem Widerspruch? Ganz und gar nicht. So sind alle Formen in diesem Raum auf das Nötigste beschränkt – selbst die Schränke haben keine Griffe. Aber mal ehrlich: Der absolute Clou dieser Küche ist die Silestone Arbeitsplatte, oder? Die pastellfarbene Oberfläche zieht unsere Blicke magisch an. Edel und zugleich sogar praktisch, denn Silestone stehen in Sachen Hygiene und Sauberkeit nichts nach.
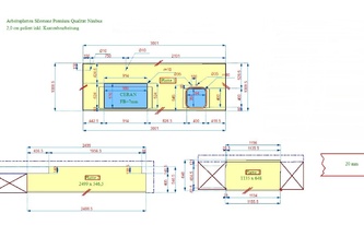
Diese Silestone Arbeitsplatten sind aus dem Material Nymbus und in 2 cm Stärke. Sie haben eine polierte Oberfläche und zwei Ausschnitte (flächenbündig und Unterbau), sowie zwei Bohrungen. Diese drei Arbeitsplatten mit den Maßen 300,1 x 100,85 cm, 249, 9 x 54,65 cm und 113, 5 x 64, 8 cm wurden in Hünstetten bei Frankfurt am Main geliefert und montiert.
Lieferung: Silestone Arbeitsplatten Nymbus
Lieferort: Hünstetten bei Frankfurt am Main in Hessen






© Copyright Arbeitsplatten Deutschland 2013 - 2026. | WEB Design MAAG-Projekt