 
  Dekton Arbeitsplatten
 
		 
		
				
		
		Eine Küche, die sowohl durch Design als auch durch Funktionalität und Technik besticht, ist der Traum von vielen Hausbesitzern. Dieser Traum kann mit den Küchenmodellen von IKEA schon bald Realität werden. Dazu die innovativen Küchenarbeitsplatten von MAAS GmbH Natursteinmanufaktur anfertigen lassen, die sowohl praktisch als auch hochwertig sind und ganz nebenbei phantastisch aussehen!
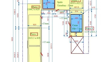
Und hier ein Beispiel in unserem aktuellen Projekt in Gärtringen der Arbeitsplatten aus Dekton in der IKEA Küche. Die Dekton Arbeitsplatten wurden aus dem Material Sirius in 1,2 cm Stärke und folgenden Maßen gefertigt:
1. 242,35 x 62,00 cm
2. 139,95 x 62,00 cm
3. 185,00 x 62,25 cm, mit Unterbauausschnitt für die Spüle und Armaturbohrung
4. 115,90 x 62,15 cm, mit flächenbündigen Ausschnitt für das Ceranfeld
Die Dekton Arbeitsplatten haben UltraMatt Oberflächen.
Nachträglich wurden drei Rückwände aus dem selben Dekton in den Maßen 178,00 x 70,30 cm, 191,50 x 24,70 cm und 30,50 x 24,70 cm produziert und montiert. In die erste Dekton Rückwand wurden 5 Bohrungen für Steckdosen mit einem Durchmesser von 68 mm eingearbeitet.
Lieferung: Dekton Arbeitsplatten und Rückwände Sirius
Lieferort: Gärtringen in Baden-Württemberg






© Copyright Arbeitsplatten Deutschland 2013 - 2025. | WEB Design MAAG-Projekt