SapienStone Arbeitsplatten und Seitenwagen
Hat man eine Küche mit Kochinsel, erlebt man gemeinsames Kochen auf eine ganz neue Art. Ganze Koch- oder Backprozesse bzw. die Vorbereitungen dazu können auf die Insel ausgelagert werden. Sind mehrere Personen am Werk kann man leichter bei der Arbeit miteinander quatschen, man guckt sich ja schließlich an.
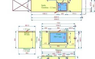
Für diese Küche mit Kücheninsel wurden zwei Arbeitsplatten und zwei Seitenwangen gefertigt, geliefert und montiert. Diese sind aus dem Keramik SapienStone Calacatta Statuario in 1,2 cm Stärke in den Maßen 263,30 x 64,10 cm und 174,10 x 90,55 cm gefertigt.
Die erste Arbeitsplatte hat einen Unterbauausschnitt und eine Bohrung eingearbeitet. Die zweite Platte befindet sich auf der Kücheninsel und hat einen flächenbündigen Ausschnitt für das Ceranfeld. Die zwei Seitenwangen in den Maßen 90,10 x 89,15 cm und 174,55 x 89,65 cm wurden um die Kücheninsel mit einem Gehrungsschnitt montiert.
Lieferung: Keramik SapienStone Arbeitsplatten und Seitenwagen Calacatta Statuario
Lieferort: Lingenfeld bei Germersheim in Rheinland-Pfalz






© Copyright Arbeitsplatten Deutschland 2013 - 2026. | WEB Design MAAG-Projekt