Schiefer Arbeitsplatten
Schiefer Arbeitsplatten sind hitzebeständig; lediglich mit Säuren, z.B. der aggressiven Zitronensäure, sollte man bei Schiefer vorsichtig umgehen. Durch ihren hohen Kalkanteil sind sie empfindlich gegen Säuren, nehmen Fett und Flüssigkeiten schnell auf oder werden fleckig. Auch für Kratzer und andere Schäden sind diese hübschen Materialien leider viel anfälliger. Dessen muss man sich bewusst sein wenn man es absolut fleckenlos und rein mag. Doch die Patina kann aber wunderschön und natürlich aussehen. Fit für den Küchenalltag wird Schiefer durch eine Imprägnierung mit Öl.
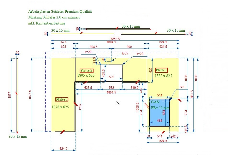
Diese Schiefer Arbeitsplatten aus dem Material Mustang Schiefer sind in 3 cm Stärke. Sie haben eine satinierte Oberfläche. Es wurden drei Schieferplatten mit den Maßen 187,8 x 62,5 cm, 180,5 x 62 cm und 188,2 x 82,5 cm geliefert. In eine Platte wurde eine Aussparung für die Keramikspüle eingearbeitet. Oberhalb der Spüle wurde eine Bohrung mit 3,5 cm Durchmesser eingearbeitet. In die zweite Arbeitsplatte wurde ein flächenbündiger Ausschnitt für das Gasfeld eingearbeitet. Nach der Montage wurden die Schiefer Arbeitsplatten imprägniert
Zusätzlich wurden aus dem selben Schiefer vier Wischleisten angefertigt und angebracht.
Lieferung: Schiefer Arbeitsplatten Mustang Schiefer
Lieferort: Haan in Nordrhein-Westfalen






© Copyright Arbeitsplatten Deutschland 2013 - 2026. | WEB Design MAAG-Projekt