Schiefer Arbeitsplatten
Mit Schiefer lassen sich nicht nur der Boden und die Wand gestalten, sondern er lässt sich auch für die Arbeitsplatte verwenden. In dieser IKEA Küche wurden Schiefer Arbeitsplatte mit weißen Schränken kombiniert und es ergab einen tollen Kontrast.
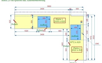
Die zwei Schiefer Arbeitsplatten sind aus dem Material Iron Black. die Oberflächen sind spaltrau und die Plattenstärke ist 2 cm. Die zwei Arbeitsplatten haben die Maße:
1. 243,0 x 62 cm - mit gesägtem Ausschnitt für das Ceranfeld
2. 202,2 x 62 cm - mit gesägtem Ausschnitt für die Spüle und einer 4 cm Ø Bohrung für den Wasserhahn
Lieferung: Schiefer Arbeitsplatten Iron Black
Lieferort: Hamburg






© Copyright Arbeitsplatten Deutschland 2013 - 2026. | WEB Design MAAG-Projekt