Silestone Arbeitsplatten
Ein Thema steht in fast allen Unternehmen regelmäßig auf der Tagesordnung: die Ordnung in der betriebseigenen Büroküche. Diese Büroküche mit furnierten Fronten in weiß sind mit Natureffektlack lackiert. Die Arbeitsplatte ist aus Silestone Cemento Spa gefertigt. Diese sorgen für hygienische Sauberkeit.
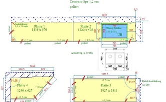
Die vier Silestoneplatten wurden in 1,2 cm Stärke bestellt, angefertigt und montiert. Die Maße der polierten Platten:
1. 181,5 x 57,6 cm, Kante links und Vorderkante poliert
2. 182 x 57,6 cm, Vorderkante poliert, mit Unterbauausschnitt
3. 182,7 x 181,1 cm, drei sichtbare Kanten poliert, Kabel-Ausklinkung eingearbeitet
4. 124,6 x 62,7 cm, mit Schrägschnitt, sichtbare Kanten poliert
Wer sich für eine Silestone Arbeitsplatte entscheidet, wählt damit ein Material aus, das eine lange Lebensdauer mit sich bringt und dank seiner hohen Strapazierfähigkeit und Widerstandsfähigkeit auch nach jahrelangen Gebrauch wie neu aussieht, sogar in einer Büroküche.
Lieferung: Silestone Arbeitsplatten Cemento Spa
Lieferort: Hamburg






© Copyright Arbeitsplatten Deutschland 2013 - 2026. | WEB Design MAAG-Projekt