Granit Arbeitsplatten
Ein Raum kann noch so winzig sein, wenn er ein gemütliches Ambiente hat, vergisst man automatisch die Größe. Es sind die kleinen Details, die ein Küchendesign perfekt machen. In unserem aktuellen Projekt sind es die außergewöhnliche Fronten aus Holz, die glänzenden Granit Arbeitsplatten und die kleinen, weißen Fliesen an der Wand, die den unvergleichlichen Charme ausmachen.
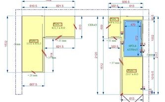
Von uns wurden die vier, polierten Granit Arbeitsplatten aus dem Material Devil Black in 3 cm Stärke gefertigt und zwar in den folgenden Maßen:
1. 153,20 x 61,05 cm
2. 82,15 x 61,00 cm
3. 60,90 x 32,25 cm
4. 211,70 x 61,30 cm, mit einem gesägtem Ausschnitt für die Spüle
Lieferung: Granit Arbeitsplatten Devil Black
Lieferort: Hennef (Sieg) in Nordrhein-Westfalen






© Copyright Arbeitsplatten Deutschland 2013 - 2026. | WEB Design MAAG-Projekt