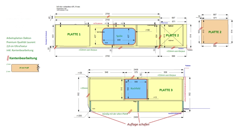
Dekton Arbeitsplatten und Wischleiste
In Ingelheim am Rhein erhielt eine traditionelle Holzküche ein stilvolles Upgrade mit neuen, modernen Arbeitsplatten. Die bisherigen hellen Oberflächen sollten durch ein langlebiges und zeitlos elegantes Material ersetzt werden. Die Wahl fiel auf Dekton Laurent, eine edle Keramikoberfläche mit dunkler Grundfarbe und goldenen Adern, die an luxuriösen Naturstein erinnert. Die UltraTexture-Oberfläche verleiht den Platten nicht nur eine besondere Haptik, sondern sorgt auch für eine raffinierte Optik. Zudem ist das Material extrem widerstandsfähig gegen Kratzer, Hitze und Flecken – ideal für den täglichen Gebrauch.
Die Küche umfasst eine Küchenzeile mit zwei Arbeitsplatten und einer Wischleiste sowie eine Kücheninsel mit einer großzügigen Arbeitsfläche. Die Hauptarbeitsplatte der Küchenzeile misst 270,00 x 60,40 cm und beinhaltet eine Aufbauspüle mit abgerundeten Ecken. Direkt daneben ergänzt eine zweite Platte mit den Maßen 68,70 x 61,40 cm das Ensemble. Die Wischleiste mit 270,00 x 4,00 cm schafft einen sauberen Übergang zur Wand.
Die Kücheninsel erhielt eine große Arbeitsplatte in den Maßen 245,60 x 90,20 cm, in die ein Kochfeld integriert wurde. Damit die Platte zum Wohnbereich hin stabil und optisch ansprechend abgestützt wird, kamen schwarze Regalwinkel als Auflage zum Einsatz.
Mit den 2,0 cm starken Dekton-Arbeitsplatten in UltraTexture wurde die warme Holzoptik der Küche perfekt ergänzt. Das Ergebnis ist eine harmonische Kombination aus natürlicher Gemütlichkeit und moderner Eleganz, die nicht nur optisch beeindruckt, sondern auch höchsten funktionalen Ansprüchen gerecht wird.
Lieferung: Dekton Arbeitsplatten und Wischleiste Laurent
Lieferort: Ingelheim am Rhein in Rheinland-Pfalz






© Copyright Arbeitsplatten Deutschland 2013 - 2026. | WEB Design MAAG-Projekt