Granit Arbeitsplatten und Wischleisten
Oberflächen aus Granit sind robust und leicht zu pflegen. Eine Arbeitsplatte aus echtem Granit überzeugt durch ein einzigartiges Musterbild, welches in jeder Küche anders ausfällt. Besonders schön wirken Granit Oberflächen in geradlinigen Küchen, aber auch als Arbeitsplatte in eleganten Landhausküchen. Die perfekten Farbpartner sind alle sogenannten Nichtfarben wie Weiß, Grau, Schwarz oder ein zurückhaltender Holzton.
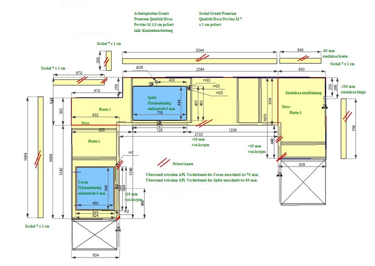
Unsere Kunden aus Kirchseeon wählten zu den weißen Schränken den Granit Rosa Porrino M mit rosafarbener Grundfärbung und ansprechender typischen Körnung. Die Granitplatten haben eine Stärke von 3,0 cm und polierte Oberfläche. Daraus wurden drei Arbeitsplatten in den folgenden Maßen produziert:
1. 124,20 x 63,40 cm, mit flächenbündigen Ausschnitt für das Ceranfeld
2. 273,70 x 63,40 cm, mit einer Ausklinkung, flächenbündigen Ausschnitt für die Spüle und Armaturbohrung
3. 107,50 x 63,50 cm
Sechs Granit Wischleisten in 7,00 x 1,00 cm Höhe und Stärke und den Längen: 160,40 cm, 67,80 cm, 26,00 cm, 204,40 cm, 54,80 cm und 79,60 cm.
Lieferung: Granit Arbeitsplatten und Wischleisten Rosa Porrino M
Lieferort: Kirchseeon in Bayern






© Copyright Arbeitsplatten Deutschland 2013 - 2026. | WEB Design MAAG-Projekt