Caesarstone Arbeitsplatten
Entdecken Sie die nahezu unendlichen Möglichkeiten mit den auf Maß gefertigten Arbeitsplatten von MAAS GmbH. Denn bei uns erhalten Sie hochwertige Küchenarbeitsplatten zu erschwinglichen Preisen. Wir sind der Hersteller von Kunststein und Naturstein Arbeitsplatten, die auf jede Küche millimetergenau Arbeitsplatten auf Maß anfertigt und somit Ihre Arbeitsplatte auch exakt auf Ihren Küche anpassen kann.
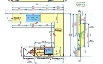
Diese Caesarstone Arbeitsplatten aus dem Material Pure White wurden nach Maß angefertigt und von unseren Montageteam montiert. Die drei Arbeitsplatten sind in 3 cm Stärke und haben eine polierte Oberfläche. Es wurde ein flächenbündiger Ausschnitt für das Ceranfeld, ein Unterbauausschnitt für die Spüle, sowie Schrägschnitte eingearbeitet. Rechts von der Spüle wurden Ablaufrillen (matt geschliffen) eingefräst.
Aus dem selben Material wurden Sockelleisten in 1,3 cm Stärke und 15 cm Höhe angefertig. In diese wurden dann 14 Löcher gebohrt für Steckdosen.
Zusätzlich wurden Glasrückwände in der RAL Farbe 9016 bestellt und von uns montiert.
Lieferung: Caesarstone Arbeitsplatten und Sockelleisten 1141 Pure White / Perfect White, Glasrückwände RAL 9016
Lieferort: Köln in Nordrhein-Westfalen






© Copyright Arbeitsplatten Deutschland 2013 - 2026. | WEB Design MAAG-Projekt