Granit Arbeitsplatten
Einfach, klar und wunderschön: Diese moderne Küchen in Köln bereichert das Haus mit einer zurückhaltenden Optik und einem großzügigen Wohnflair. Der monochrome Look in Schwarz-Weiß, dunkle Arbeitsplatten und weißen Schränken – das moderne Küchen-Designs begeistern mit raffinierten Materialien, die miteinander kombiniert wurden.
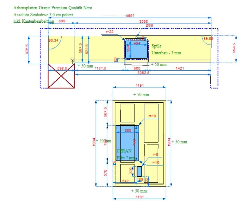
In dieser Küche in Köln befinden sich drei Arbeitsplatten aus dem Granit Nero Assoluto Zimbabwe in 3,0 cm Stärke. Die zwei Granitplatten auf der Küchenzeile haben die Maße 306,80 x 59,45 cm und 59,90 x 62,25 cm. In die lange Platte wurde ein Unterbauauschnitt und eine Armaturbohrung eingearbeitet.
Die dritte Platte auf der Kücheninsel ist 193,40 x 119,10 cm groß, in welche ein flächenbündiger Ausschnitt für das Ceranfeld und Steckdosen eingearbeitet wurden.
Lieferung: Granit Arbeitsplatten Nero Assoluto Zimbabwe
Lieferort: Köln in Nordrhein-Westfalen






© Copyright Arbeitsplatten Deutschland 2013 - 2026. | WEB Design MAAG-Projekt