Granit Arbeitsplatten
Die Einbauküche bietet durch ihre kompakte, aber vielseitige Form so einige Vorteile. Alle Küchenteile sind miteinander verbunden und bilden eine Einheit. Die Arbeitsplatte ist eine durchgängige Platte und sorgt somit für optimale Stabilität. Die verschiedensten Geräte zum Kochen lassen sich problemlos in die Küchenarbeitsplatte integrieren. Das spart Platz und sorgt für Ordnung.
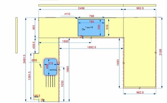
Bei uns erhalten Sie für Ihre Einbauküche die perfekte Arbeitsplatte nach Maß. In Köln wurde eine Küchenarbeitsplatte aus dem Granit Star Galaxy in 3 cm Stärke, mit polierter Oberfläche eingebaut. Die Kunden wünschte sich zwei Aussparungen - flächenbündig für die Kochstelle und Unterbau für die Spüle.
Bei der Unterbauspüle wurde eine Abtropffläche mit Ablaufrillen eingefräst. Außerdem wurde eine entsprechende Bohrung für die Spülarmatur gebohrt.
Zusätzlich wurden Star Galaxy Sockelleisten in 5 cm Höhe, aber in unterschiedlichen Längen an der Wand montiert.
Lieferung: Granit Arbeitsplatten Star Galaxy
Lieferort: Köln in Nordrhein-Westfalen






© Copyright Arbeitsplatten Deutschland 2013 - 2026. | WEB Design MAAG-Projekt