Granit Arbeitsplatten
In dieser stilvollen Kölner Küche trifft zeitgemäßes Design auf hochwertige Naturmaterialien. Der Raum beeindruckt mit einer großzügigen, offenen Struktur, die durch zahlreiche Oberlichter, hohe Decken und eine große Glas-Schiebetür zu einem begrünten Innenhof hin lichtdurchflutet ist. Die Kombination aus Sichtmauerwerk und glatten weißen Wandflächen verleiht dem Raum einen urbanen Loft-Charakter mit wohnlichem Flair.
Die Küche ist entlang zweier Hauptachsen angeordnet: einer langen Küchenzeile vor der Backsteinwand und einer gegenüberliegenden Kücheninsel, die leicht zur Wand hin eingerückt ist. Die Unterschränke präsentieren sich in einem modernen, pudrig-violetten Farbton mit matter Oberfläche und grifflosen Fronten, die über eingefräste Griffleisten geöffnet werden. Diese ruhige Linienführung unterstreicht das puristische Gesamtbild der Küche.
Für die Arbeitsflächen kamen insgesamt vier massive Arbeitsplatten aus Granit Nero Assoluto Zimbabwe zum Einsatz. Die tiefschwarze Oberfläche mit gleichmäßiger Struktur und eleganter Politur bildet einen hochwertigen Kontrast zu den farbigen Fronten und verleiht der Küche Tiefe und Ausdruck.
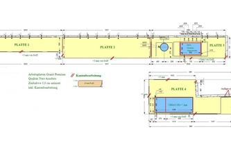
Auf der Küchenzeile wurden drei Platten verarbeitet:
1. 254,30 x 50,40 cm
2. 303,10 x 72,20 cm
3. 254,80 x 72,30 cm, die neben einem runden flächenbündigen Ausschnitt auch einen Unterbauausschnitt für die Spüle enthält. Oberhalb sind vier Armaturbohrungen vorgesehen, perfekt für Armatur, Seifenspender oder Steckdosenmodule.
Die großzügige Kücheninsel misst 286,10 x 118,40 cm und wurde präzise an die Wand angepasst, inklusive einer Ausklinkung für einen nahtlosen Wandanschluss. In der Granitoberfläche wurde ein Ceranfeld flächenbündig eingelassen, was nicht nur funktional, sondern auch optisch besonders ansprechend ist.
Diese Küche ist ein gelungenes Beispiel für moderne Wohnkultur mit Substanz – technisch durchdacht, ästhetisch ausbalanciert und hochwertig in der Ausführung.
Lieferung: Granit Arbeitsplatten Nero Assoluto Zimbabwe
Lieferort: Köln in Nordrhein-Westfalen






© Copyright Arbeitsplatten Deutschland 2013 - 2026. | WEB Design MAAG-Projekt