Marazzi Arbeitsplatten
Die Küche in Köln vereint modernes Design mit hoher Funktionalität und einer klar strukturierten Anordnung der Elemente. Der quadratische Raum bietet eine helle und freundliche Atmosphäre, die durch die sorgfältige Materialwahl und Farbgestaltung unterstützt wird. Entlang der rechten Wand befindet sich eine Reihe von Hochschränken mit vier gleichgroßen Türen. Einer der Schränke beherbergt einen integrierten Backofen, wodurch der Bereich optisch und praktisch den Mittelpunkt der Wand bildet. Die Fronten der Hochschränke sind in einem hellen Grau gehalten, das eine dezente Eleganz ausstrahlt und zeitlos wirkt.
Vor den Hochschränken verläuft die Hauptarbeitszeile entlang der Wand mit Unterschränken, die direkt unter dem Fenster angeordnet sind. Die Spüle wurde so positioniert, dass man beim Arbeiten einen freien Blick nach draußen genießen kann. Diese Zeile setzt sich um die Ecke an der linken Wand fort, wo die Unterschränke weiteren Stauraum bieten. Den Abschluss der Raumgestaltung bildet eine kompakte Halbinsel, die mit einem flächenbündigen Kochfeld ausgestattet ist und als zentrale Arbeits- und Kochfläche dient. Zwischen der Halbinsel und den Hochschränken wurde ein großzügiger Durchgang gelassen, der die Küche offen und zugänglich macht.
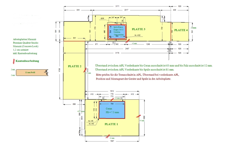
Für diese Küche wurden vier hochwertige Keramik-Arbeitsplatten aus Smoke Marazzi gefertigt. Das Material überzeugt durch seinen modernen Concrete Look und die satinierten Oberflächen, die sowohl ästhetisch als auch praktisch sind. Die Arbeitsplatten haben eine Stärke von 1,2 cm und verleihen der Küche eine urbane und gleichzeitig elegante Note.
Die erste Arbeitsplatte wurde auf der Halbinsel montiert und misst 161,20 x 108,80 cm. Sie verfügt über einen flächenbündigen Ausschnitt für das Kochfeld, der präzise eingearbeitet wurde. Die zweite Arbeitsplatte befindet sich an der linken Wand und hat die Maße 173,00 x 65,60 cm, was reichlich Platz für Arbeitsabläufe bietet. Die dritte Arbeitsplatte, die entlang der Fensterzeile verläuft, ist mit ihren Maßen von 317,10 x 77,90 cm die größte. Sie enthält einen präzise gearbeiteten Ausschnitt für eine Unterbauspüle, eine Armaturbohrung sowie eine passgenaue Fensternische. Die vierte Arbeitsplatte mit den Maßen 56,10 x 52,80 cm ergänzt das Ensemble und bietet eine zusätzliche Fläche für kleinere Arbeiten oder Ablagen.
Die Kombination aus den klaren Linien der grauen Fronten und dem markanten Concrete Look der Arbeitsplatten sorgt für ein stimmiges und modernes Erscheinungsbild. Die sorgfältig abgestimmte Einrichtung und die hochwertigen Materialien machen diese Küche zu einem funktionalen und ästhetischen Mittelpunkt des Wohnraums.
Lieferung: Marazzi Arbeitsplatten Smoke Marazzi (Concrete Look)
Lieferort: Köln in Nordrhein-Westfalen






© Copyright Arbeitsplatten Deutschland 2013 - 2026. | WEB Design MAAG-Projekt