 
  Porcelanosa Arbeitsplatten und Seitenwange
 
		 
		
				
		
		Nur was aus großer Hitze erschaffen wurde, kann solch tiefe Eleganz ausstrahlen. Diese Arbeitsplatten aus Keramik haben einfach die Substanz, um für viele Jahre und jeden Tag aufs Neue mit ihrer Präsenz zu begeistern. Klare, fast schon monolithische Linien und bis ins Detail durchdachte Funktionalität dank der extrabreiten Auszugsschränke prägen die Kochinsel mit den angesagten weißen Fronten. Die Wandlösung beherbergt die hoch eingebauten E-Geräte und runden dieses wohlgefällige Inselküchen-Ensemble ab. Das Ergebnis ist ein einzigartiger Platz fürs Kochen und fürs Leben.
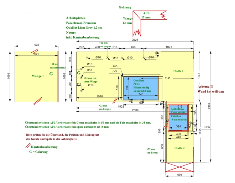
Auf der Kochinsel wurde eine Arbeitsplatte in den Maßen 252,50 x 110,40 cm und eine Seitenwange in 109,90 x 93,30 cm montiert. In die Arbeitsplatte wurde das Bora Ceranfeld mit integriertem Dunstabzug flächenbündig eingebaut. Eine weitere Arbeitsplatte wurde in den Maßen 129,80 x 60,60 cm mit einem Unterbauausschnitt und einer Bohrung hergestellt und montiert. Für die Herstellung wurde das Material Liem Grey von Porcelanosa in 1,2 cm Stärke und Nature Oberflächen gewählt.
Lieferung: Porcelanosa Arbeitsplatten und Seitenwange Liem Grey
Lieferort: Köln in Nordrhein-Westfalen






© Copyright Arbeitsplatten Deutschland 2013 - 2025. | WEB Design MAAG-Projekt