Granit Arbeitsplatten, Seitenwangen und Wischleisten
Beige und Magnolie sind Weißtöne mit einer Beimischung von Braun. Im Gegensatz zu reinem Weiß wirken die Cremetöne nicht unterkühlt, sondern sie strahlen eine angenehme Reinheit und Wohnlichkeit aus. Durch den leichten Braunanteil strahlen sie außerdem Harmonie und Leichtigkeit aus. Beigetöne wirken offen und leicht und sind damit sowie ideale Farben für die Küchengestaltung. Granit Arbeitsplatten und eine großzügige Kücheninsel in Braun unterstreichen das Wohlfühl-Ambiente in dieser Küche in Korschenbroich.
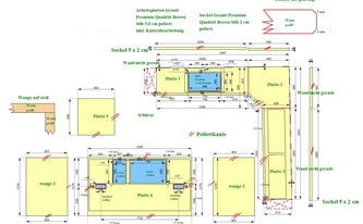
Hierfür wurden fünf Arbeitsplatten, zwei Seitenwangen und vier Wischleisten aus dem Granit Brown Silk in 3,0 cm Stärke und polierten Oberflächen gefertigt. Diese haben folgende Maße:
1. 200,50 x 61,20 cm
2. 89,20 x 90,30 cm
3. 200,20 x 61,20 cm
4. 226,80 x 127,80 cm
5. 80,00 x 80,00 cm
In die erste Arbeitsplatte wurde ein Unterbauausschnitt für die Spüle und eine Armaturbohrung eingearbeitet. Die zweite Granitplatte hat einen Schrägschnitt und die vierte Platte hat vier Aufbauausschnitte. Die zwei Seitenwangen wurden in den Maßen 127,80 x 90,40 cm hergestellt und bei der Kücheninsel montiert. Die Wischleisten sind 2,0 cm stark und haben eine Höhe von 5,0 cm.
Lieferung: Granit Arbeitsplatten, Wischleisten und Wangen Brown Silk
Lieferort: Korschenbroich in Nordrhein-Westfalen






© Copyright Arbeitsplatten Deutschland 2013 - 2026. | WEB Design MAAG-Projekt