Granit Arbeitsplatten
In einer Küche wird viel gearbeitet. Schneiden, kochen, backen, spülen, rühren, kneten, es gibt allerhand zu tun. Manchmal geht es in der Küche richtig hektisch zu. Kein Wunder, wenn da mal was daneben geht. Deswegen müssen die Arbeitsplatten alle Tätigkeiten aushalten können, ohne dabei Schaden zu nehmen.
Ausgebildete und erfahrene Berater zeigen Ihnen bei MAAS GmbH die Vielzahl an Musterstücken und planen gemeinsam mit Ihnen Ihre Küchenarbeitsplatte. Angepasst an die Größe Ihrer Küche planen wir nach Ihren Budgetvorgaben.
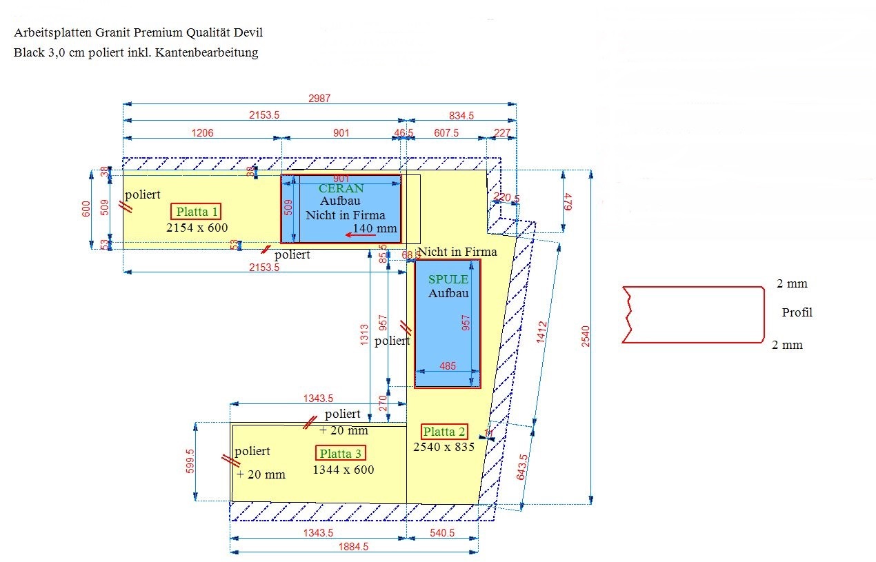
Liebhaber der Kontraste wählen sicherlich die Farbkombination Schwarz/Weiß, der Klassiker unter den Farbkombinationen, der nie aus der Mode kommt. Das dachte sich auch unser Kunde aus Bodenheim bei Mainz. Zu seinen weißen Schränke wählte er die Nero Devil Black Arbeitsplatte in einer Stärke von 3 cm. Sehr puristisch wirken matte schwarze Oberflächen, deswegen wurde für die Oberflächenbearbeitung der Granit Arbeitsplatte satiniert gewählt.
Außerdem wurden für die Küchenspüle aus Silicate und das Kochfeld jeweils ein gesägter Ausschnitt eingearbeitet.
Lieferung: Granit Arbeitsplatten Nero Devil Black
Lieferort: Bodenheim bei Mainz in Rheinland-Pfalz






© Copyright Arbeitsplatten Deutschland 2013 - 2026. | WEB Design MAAG-Projekt