Granit Arbeitsplatten
Stilvoll und ungekünstelt passt sich der Paradiso Tucano Granit jedem Ambiente an. Facettenreiche Struckturverläufe und zahlreiche Farbvariatione machen Küchenarbeitsplatten aus Granit zu edlen Unikaten. Diese Küchenarbeitsplatten punkten mit den Eigenschaften wie abrieb-, hitze- und kratzfest, hygiensch und pflegeleicht.
Natur pur strahlt er im Zusammenspiel mit Holzfronten aus, eine kühle Kombination gelingt mit Edelstahl, Glas oder Chrom.
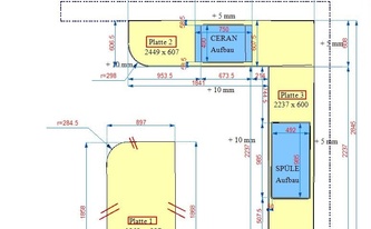
Die Arbeitsplatte und die Elektrogeräte unserer Kunden aus Mannheim ist in die Jahre gekommen und haben diese Erneuert. Zu der bereits bestehend Küche mit Holzfronten wählten Sie den Granit Paradiso Tucano in 3 cm Stärke. Für das Ceranfeld und die Spüle mussten gesägte Ausschnitte eingearbeitet werden. Die Oberflächen der Arbeitsplatten wurde poliert. Die Arbeitsplatte auf der Kücheninsel hat eine Außenrundung bis 5cm Radius.
Es wurden drei Granitplatten mit den Maßen: Platte 1 186,8 x 89,7 cm, Platte 2 244,9 x 60,7 cm, Platte 3 223,7 x 60,0 cm, geliefert.
Lieferung: Granit Arbeitsplatten Paradiso Tucano
Lieferort: Edingen-Neckarhausen bei Mannheim in Baden-Württemberg






© Copyright Arbeitsplatten Deutschland 2013 - 2026. | WEB Design MAAG-Projekt