Granit Arbeitsplatten
Den Großteil des Erdgeschosses nimmt der offen gestaltete Wohn-, Ess- und Kochbereich ein, wobei die einzelnen Funktionsbereiche zwar fließend ineinander übergehen, aber durch ihre Winkelform dennoch voneinander separiert sind. Dank der zwei Fenster wird die gesamte Küche mit natürlichem Licht geflutet.
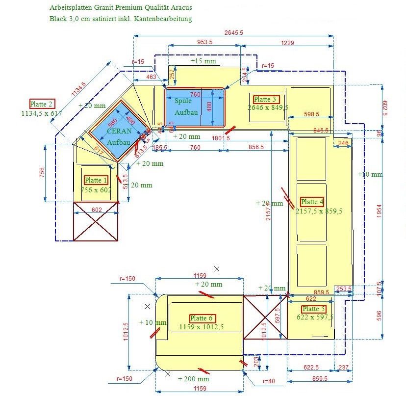
Insgesamt wurden sechs Granit Arbeitsplatten für diese Küche in Meckenheim benötigt. Die Granit Arbeitsplatten sind aus dem Material Aracus Black und in 3 cm Stärke. Die Oberflächen der Arbeitsplatten sind satiniert und die Außenkanten poliert.
Die Maße:
1. 75,60 x 60,20 cm
2. 113,45 x 61,70 cm, mit einem gesägten Ausschnitt für das Ceranfeld
3. 264,60 x 84,95 cm, mit einem gesägten Ausschnitt für die Spüle
4. 215,75 x 85,95 cm
5. 62,20 x 59,75 cm
6. 115,90 x 101,25 cm
Lieferung: Granit Arbeitsplatten Aracus Black
Lieferort: Meckenheim in Nordrhein-Westfalen






© Copyright Arbeitsplatten Deutschland 2013 - 2026. | WEB Design MAAG-Projekt