Silestone Arbeitsplatten und Rückwand
Unsere Kunden aus München finden das Fliesen in der Küche sehr praktisch sind. Wasser, Schmutz, Fettspritzer können einfach weggewischt werden – bei Bedarf halten die Fliesen auch eine kräftigere Putzaktion aus, da sie komplett wasserunempfindlich sind. Mit den grünen Kacheln im Retro Stil verzieren Sie die IKEA Küche mit klassischem, aber dennoch außergewöhnlichem Look!
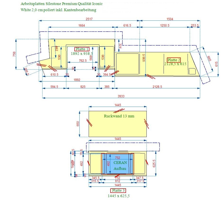
Die weißen IKEA Unterschränke wurden mit den von uns gefertigten Silestone Arbeitsplatten aus dem Material Iconic White in 2,0 cm Stärke ausgestattet.
Es wurden drei Silestone Arbeitsplatten in den folgenden Maßen gefertigt:
1. 189,20 x 93,85 cm, mit einem gesägten Ausschnitt für die Keramikspüle und einem Schrägschnitt
2. 212,85 x 61,50 cm, mit einem Schrägschnitt
3. 144,50 x 62,55 cm, mit einem gesägten Ausschnitt für das Ceranfeld.
Oberhalb der dritten Arbeitsplatte wurde eine Rückwand in den Maßen 144,50 x 65,00 x 1,30 cm aus dem selben Material gefertigt.
Lieferung: Silestone Arbeitsplatten und Rückwand Iconic White
Lieferort: München in Bayern






© Copyright Arbeitsplatten Deutschland 2013 - 2026. | WEB Design MAAG-Projekt