Keramik SapienStone Arbeitsplatten
Gegensätze ziehen sich an! Überraschende Kontraste sind coole Eyecatcher, die jeden Raum zu etwas ganz Besonderem machen und auch in der Küche alle Blicke auf sich ziehen. So kommt die moderne Küche im minimalistischen Design vor einer exponierten Keramikarbeitsplatte besonders gut zur Geltung.
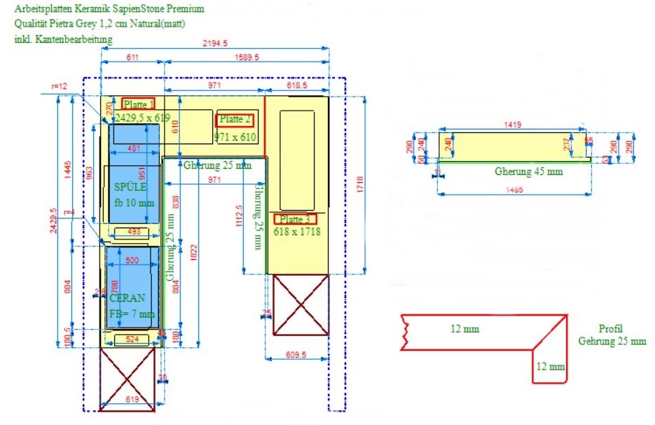
Diese U-förmige Küche in München hat drei neue SapienStone Keramikarbeitsplatten aus dem Material Pietra Grey montiert bekommen. Die Plattenstärke ist 1,20 cm wurde aber mit Gehrungskanten auf 2,50 cm optisch vergrößert.
Die drei Keramik SapienStone Arbeitsplatten haben folgende Maße:
1. Keramikarbeitsplatte in 242,95 x 61,90 cm, mit zwei flächenbündigen Ausschnitten (Ceranfeld und Spüle)
2. Keramikarbeitsplatte in 97,10 x 61,00 cm
3. Keramikarbeitsplatte in 171,80 x 61,80 cm
Zu den Arbeitsplatten wurde eine Fensterbank aus dem selben Material in den Maßen 141,90 x 29,00 cm gefertigt. Diese hat eine Gehrung von 4,50 cm und an beiden Seiten Ausklinkungen.
Lieferung: Keramik SapienStone Arbeitsplatten Pietra Grey
Lieferort: München in Bayern






© Copyright Arbeitsplatten Deutschland 2013 - 2026. | WEB Design MAAG-Projekt