Dekton Arbeitsplatte
Unsere Kunden haben ihre Küche mit einer stilvollen Kücheninsel erweitert und sich für eine hochwertige Dekton Arbeitsplatte aus dem Material Aura 15 entschieden.
Dekton Aura 15 zeichnet sich durch seine edle Marmoroptik aus, inspiriert von klassischem Carrara-Marmor. Die markante weiße Oberfläche mit feinen grauen Adern verleiht der Küche eine elegante und zeitlose Ästhetik. Dank der UltraMatt-Oberfläche wirkt sie besonders modern und ist gleichzeitig äußerst widerstandsfähig gegen Kratzer, Flecken und Hitze – perfekt für den täglichen Gebrauch.
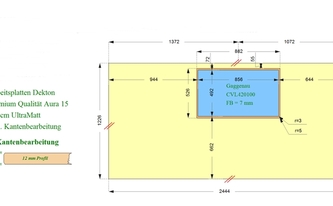
Die Dekton Arbeitsplatte der Insel misst 244,40 x 122,60 cm bei einer Stärke von 1,2 cm. Sie wurde mit einem flächenbündig integrierten Ceranfeld ausgestattet, das eine harmonische Optik schafft und die Reinigung erleichtert.
Vor der Erweiterung bestand die Küche aus einer weißen Küchenzeile, die mit dem Esstisch kombiniert war. Die neue Kücheninsel bringt nun nicht nur mehr Arbeitsfläche, sondern auch ein offenes, einladendes Raumgefühl – der neue Mittelpunkt der Küche!
Lieferung: Dekton Arbeitsplatte Aura 15
Lieferort: Oerlinghausen in Nordrhein-Westfalen






© Copyright Arbeitsplatten Deutschland 2013 - 2026. | WEB Design MAAG-Projekt