SapienStone Arbeitsplatten
Wie vielfältig Küchen sein können, zeigt dieses aktuelle Projekt in Regensburg in Blau. Die Unterschränke sind in Brilliantblau, während die Arbeitsplatten in Holzoptik sind. Individuelle Griffe und Schranktüren verleihen ein modernes Vintage-Flair. Dank der aus Keramik gefertigten Arbeitsplatten ist diese Küche für alle Liebhaber des Vintage-Stils, aber auch für all jene, die sich für den modernen Landhausstil begeistern können, geeignet.
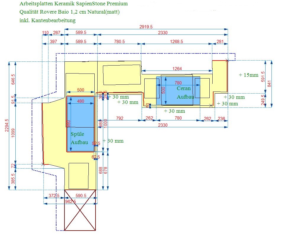
Die Keramik Arbeitsplatten sind aus dem Material Rovere Baio von SapienStone und haben eine Stärke von 1,2 cm, sowie Natural (matt) Oberflächen. Die Arbeitsplatten haben die Maße 229,45 x 96,25 cm und 233,00 x 84,10 cm.
In die erste Arbeitsplatte wurde ein gesägter Ausschnitt für die Spüle eingearbeitet, sowie zwei Schrägschnitte für das Fenster. In die zweite Arbeitsplatte wurde ein gesägter Ausschnitt für das Ceranfeld eingearbeitet, sowie Ausklinkungen und ein Schrägschnitt.
Lieferung: Keramik SapienStone Arbeitsplatten Rovere Baio
Lieferort: Regensburg in Bayern






© Copyright Arbeitsplatten Deutschland 2013 - 2026. | WEB Design MAAG-Projekt