Neolith Arbeitsplatte
Die Küche in Remagen beeindruckt durch ihr modernes Design und ihre klare Struktur. Eine komplette Wand besteht aus weißen Hochschränken, die nicht nur großzügigen Stauraum bieten, sondern auch die Einbaugeräte nahtlos integrieren. Um die Schränke herum verläuft eine stilvolle graue Lamellenwand, die als optisches Highlight fungiert und gleichzeitig für ein harmonisches Zusammenspiel der Farben sorgt.
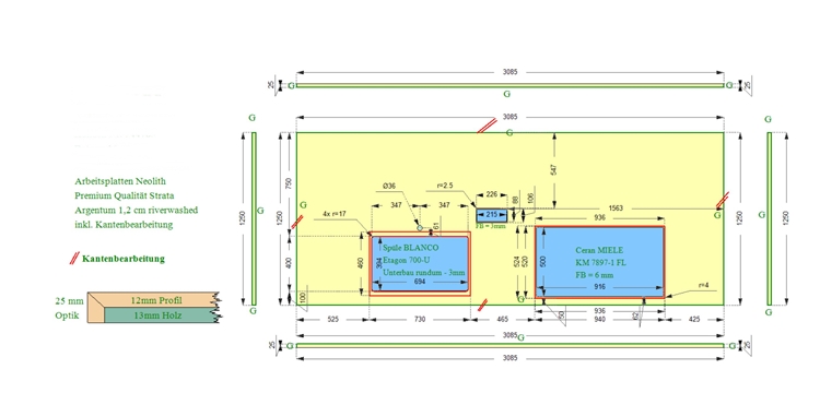
Im Mittelpunkt der Küche steht eine große und elegante Kücheninsel, die mit einer Neolith Arbeitsplatte aus Strata Argentum ausgestattet ist. Dieses Material zeichnet sich durch eine natürliche, schichtartige Struktur in sanften Grautönen aus. Die Oberfläche in riverwashed-Optik verleiht der Platte eine matte, leicht strukturierte Haptik, die sowohl luxuriös als auch äußerst widerstandsfähig ist. Die rundum angebrachten 2,5 cm Gehrungsschürzen unterstreichen die hochwertige Verarbeitung und verleihen der Platte eine massive, luxuriöse Optik.
Die großzügige Insel misst 308,50 x 125,00 cm und bietet eine vielseitige Arbeitsfläche. Funktionalität und Ästhetik verschmelzen hier: In die Arbeitsplatte sind eine Unterbauspüle, eine Armaturbohrung, flächenbündige Steckdosen und ein flächenbündiges Miele-Ceranfeld präzise integriert. Diese makellose Verarbeitung sorgt für eine durchgehende und moderne Optik, die höchsten Ansprüchen gerecht wird.
Die offene Gestaltung der Küche ermöglicht beim Kochen einen weiten Blick in die angrenzenden Wohnräume und den Garten, was den Raum besonders einladend und großzügig wirken lässt. Die Kombination aus weißen Fronten, der eleganten Lamellenwand und der edlen Strata-Argentum-Arbeitsplatte macht diese Küche zu einem Vorzeigebeispiel für modernes Design mit hohem funktionalem Anspruch.
Lieferung: Neolith Arbeitsplatte Strata Argentum
Lieferort: Remagen in Rheinland-Pfalz






© Copyright Arbeitsplatten Deutschland 2013 - 2026. | WEB Design MAAG-Projekt