Dekton Arbeitsplatten und Wischleisten
Traditionelle Rahmenfronten in Steingrau fügen sich äußerst harmonisch in die architektonischen Gegebenheiten dieser charmanten Küche in Remscheid. Die großzügige Insel lädt zum Arbeiten, Kochen und gemeinsamen Genießen ein. Schönes Extra: Die Durchreiche. Sie ist praktisch, verbindet Räume, schafft Licht und passt auch in moderne Räume wie wir im aktuellen Projekt sehen.
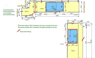
Für diese Küche wurden drei Arbeitsplatten und sieben Wischleisten für die Küchenzeile und Kücheninsel hergestellt. Die drei Dekton Arbeitsplatten wurden aus dem Material Kelya in 2,0 cm Stärke. Die erste Arbeitsplatte in den Maßen 75,10 x 81,90 cm hat eine Ausklinkung und einen Schrägschnitt. Daneben befindet sich die zweite Dektonplatte in den Maßen 244,60 x 61,20 cm und hat einen Aufbauausschnitt für die graue Spüle. Sechs Wischleisten in 5,0 x 2,0 cm wurden an die Wand montiert.
Für die Insel wurde eine Küchenarbeitsplatte in den Maßen 201,70 x 87,30 cm mit einen Aufbauausschhnitt und einen Schrägschnitt hergestellt und montiert. An der Wand wurde auch hier eine Wischleiste in den Maßen 87,30 x 5,00 x 2,00 cm montiert.
Lieferung: Dekton Arbeitsplatten und Wischleisten Kelya
Lieferort: Remscheid in Nordrhein-Westfalen






© Copyright Arbeitsplatten Deutschland 2013 - 2026. | WEB Design MAAG-Projekt