Level Arbeitsplatten
Hier treffen neuste innovative Küchentechnik auf die stilvolle Landhausküche. Sowohl die schlichten Fronten im Landhausstil als auch der Aufbau mit Kücheninsel wirken besonders modern. Dieser Eindruck wird von den hochwertigen Küchengeräten zusätzlich unterstützt. Das eigentliche Highlight der Einbauküche sind allerdings die Arbeitsplatten in Marmoroptik. Diese wurden aus dem Material Statuario Michelangelo von Level Keramik gefertigt.
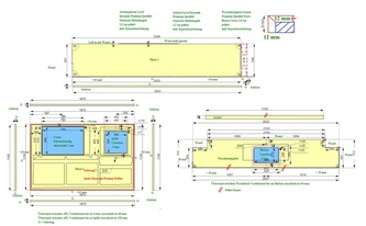
Die zwei Arbeitsplatten haben eine Stärke von 1,2 cm wurden aber mit Gehrungsschürzen in 2,5 cm Höhe verklebt. Die Küchenzeile wurde mit einer Arbeitsplatte in den Maßen 303,60 x 59,40 cm ausgestattet. Für die Kücheninsel wurde eine Keramikplatte in den Maßen 187,50 x 119,00 cm gefertigt. In diese Arbeitsplatte wurde ein flächenbündiger Ausschnitt für das Ceranfeld eingearbeitet, sowie ein Unterbauausschnitt für das Spülbecken und eine Armaturbohrung.
Lieferung: Level Arbeitsplatten Statuario Michelangelo
Lieferort: Rheinbach in Nordrhein-Westfalen






© Copyright Arbeitsplatten Deutschland 2013 - 2026. | WEB Design MAAG-Projekt