Granit Arbeitsplatten und Rückwand
Die Farbe schwarz hat einen überaus reizvollen Charakter, den man viel öfter im Innenraum einsetzen sollte. Optimal geplant strahlt sie nämlich nicht nur ein enorm stylisches Flair aus, sie wirkt zudem einfach zeitlos modern.
Garant dafür ist jedoch nicht nur die Farbe, sondern auch die Wahl der Produkte - wie zb. hier in unserem aktuellen Projekt: Arbeitsplatten, Rückwand und Wischleisten. Diese sind aus dem Granit Nero Angola und sind pflegeleicht und praktisch.
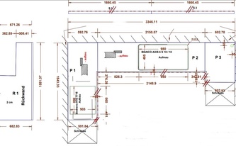
Es wurden 3 Granit Arbeitsplatten, eine Rückwand und 4,11 Lfm Wischleisten in 3,0 cm Stärke produziert, geliefert und montiert.
Die Arbeitsplatten haben folgende Maße:
1. Granit Arbeitsplatte in 154,30 x 59,20 cm
2. Granit Arbeitsplatte in 215,50 x 60,00 cm
3. Granit Arbeitsplatte in 79,70 x 60,20 cm
In die erste und zweite Arbeitsplatte wurde ein gesägter Ausschnitt eingearbeitet und in die dritte eine Lochbohrung.
Die Granit Rückwand hat die Maße 155,10 x 68,00 cm und hat eine nicht sichtbare Ausklinkung.
Lieferung: Granit Arbeitsplatten und Rückwand Nero Angola
Lieferort: Rutesheim in Baden-Württemberg






© Copyright Arbeitsplatten Deutschland 2013 - 2026. | WEB Design MAAG-Projekt