 
  Silestone Arbeitsplatten
 
		
				
		
		Diese IKEA Küche in Angelbachtal bei Sinsheim vermittelt ein harmonisches, einzigartiges Wohngefühl. Massive Fronten, gemusterte Tapeten, Silestone Arbeitsplatten mit Suede Oberflächen und ein natürlicher Holzfußboden machen diese Küche zu einem Raum, in dem man sich wie im Urlaub fühlen kann und der zu einem harmonischen Wohngefühl in den eigenen vier Wänden beiträgt.
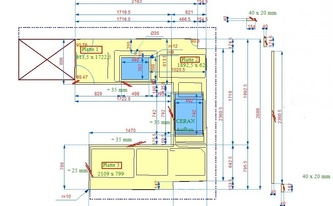
Die weißen Silestone Arbeitsplatten in Marmoroptik sind aus dem Material Eternal Calacatta Gold in 2,0 cm Stärke bestellt. Für diese IKEA Küche in U-Form wurden drei Arbeitsplatten in den folgenden Maßen gefertigt:
1. Silestone Arbeitsplatten in 172,25 x 81,35 cm
2. Silestone Arbeitsplatten in 189,20 x 62,10 cm
3. Silestone Arbeitsplatten in 210,90 x 79,90 cm
In die erste Arbeitsplatte wurde ein Unterbauausschnitt für die Spüle und eine Armaturbohrung eingearbeitet. In die zweite Platte ein gesägter Ausschnitt für das Ceranfeld und zwei Ausklinkungen.
Dazu 6,96 Lfm Silestone Wischleisten in 4,0 x 2,0 cm.
Lieferung: Silestone Arbeitsplatten und Wischleisten Eternal Calacatta Gold
Lieferort: Angelbachtal bei Sinsheim in Baden-Württemberg






© Copyright Arbeitsplatten Deutschland 2013 - 2025. | WEB Design MAAG-Projekt